
Unser Büro
Unser Architekturbüro besteht seit 1986 und ist schwerpunktmäßig im Hochbau tätig.
Seit 1993 sind wir in Regenstauf vor den Toren Regensburgs ansässig.
Unser qualifiziertes Team von Mitarbeitern wird Ihnen kompetent und sachkundig in allen Bereichen der Planung und Bauüberwachung zur Verfügung stehen.
Wir würden uns freuen, Ihnen unsere Architektenleistungen anbieten zu dürfen.
Für eine einwandfreie Ausführung der uns übertragenen Arbeiten können wir garantieren.
Zu unserem Kundenkreis zählen sowohl private Bauherren und Bauträgergesellschaften als auch Kommunen, gemeinnützige Vereine und Kirchen.
Leistungsphasen nach HOAI:
1 Grundlagenermittlung
2 Vorplanung
3 Entwurfsplanung
4 Genehmigungsplanung
5 Ausführungsplanung
6 Vorbereitung der Vergabe
8 Objektüberwachung
9 Objektbetreuung und Dokumentation

Kontakt
Architekturbüro Kartini
Hauptstr. 50
93128 Regenstauf
Telefon: 09402 / 36 99
Telefax: 09402 / 77 95
info@architekturbuero-kartini.de

Neubau
Johanniter-Hotel Includio in Burgweinting
Hotelzimmer: 84
Nutzfläche: 5.819 m²
Auftraggeber: Johanniter-Unfall-Hilfe e.V.
Bauort: Regensburg – Burgweinting
Leistungsphasen: 1 – 9
Fertigstellung: 2022
Das Integrationshotel Includio ist ein völlig barrierefreies Hotel mit 84 Zimmern, davon 18 rollstuhlgerecht und drei Familienzimmer. Es hat einen modernen Tagungsbereich, ein Restaurant mit Wintergarten und Sonnenterrasse, einen kleinen Wellnessbereich mit Sauna und Sanarium sowie einen Fitnessraum.
Eckert Kinderhaus in Regenstauf
3 Kindergarten- und 1 Kinderkrippen-Gruppe
Nutzfläche: 837 m²
Grundstücksfläche: 3.323 m²
Auftraggeber: Markt Regenstauf
Bauort: Regenstauf
Leistungsphasen: 1 – 9
Fertigstellung: 2018
Das eingeschossige Kinderhaus wurde mit zwei gegeneinander versetzten Pultdächern errichtet und hat einen eingeschossigen Flachdachanbau.
Auf dem Grundstück befinden sich neben einem 1.050 m² großen Außenspielbereich auch 20 PKW-Stellplätze, davon einer für Menschen mit Behinderung.
Neubau und spätere Erweiterung des Kinderhauses „Weltentdecker“ in Schwandorf
3 Kindergarten- und 3 Kinderkrippen-Gruppen
Nutzfläche: 916 m² nach Erweiterung 981 m²
Auftraggeber: Johanniter-Unfall-Hilfe e.V.
Bauort: Schwimmbadstraße in Schwandorf
Leistungsphasen: 1 – 9
Fertigstellung: 2018 / 2023
Der L-förmige – nach der Erweiterung Z-förmige – Baukörper mit Walmdach umschließt einen zentralen großen Außenspielbereich. Nach der Erweiterung wurde dieser noch vergrößert.

Sanierung
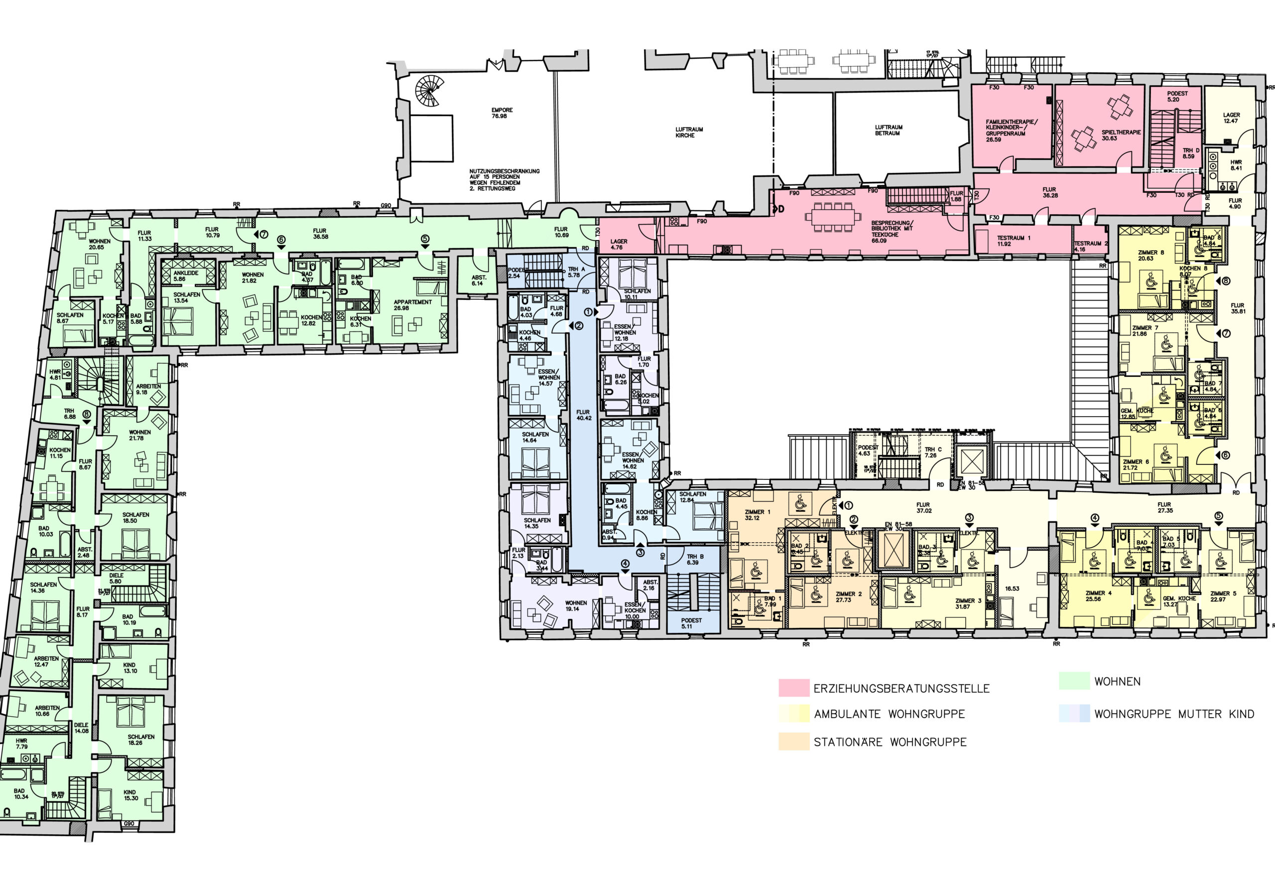
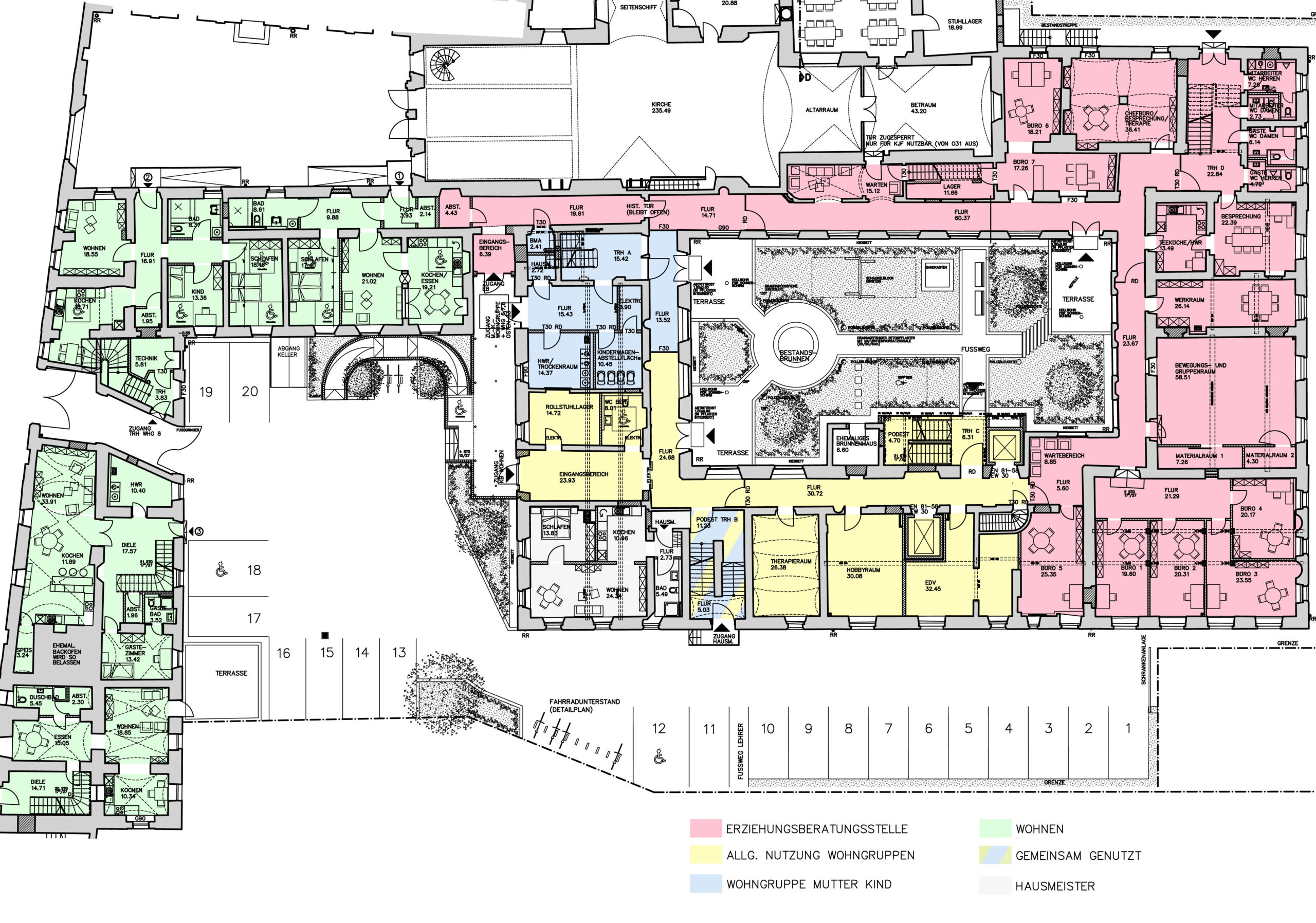
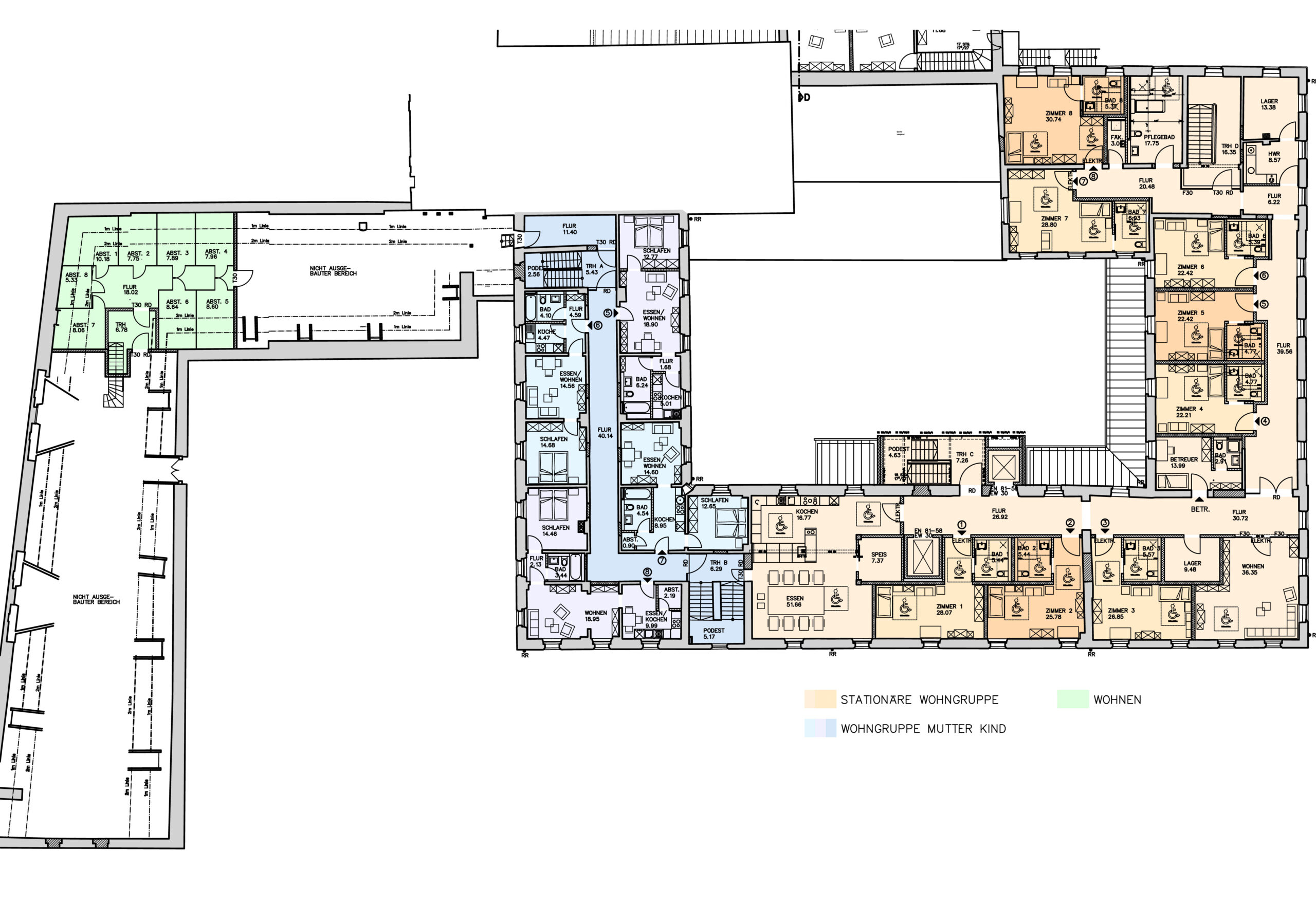
Klosters St. Klara in Regensburg
Einheiten: Erziehungsberatungsstelle, Mutter-Kind-Wohnen, Behindertenwohngruppen (1x stationär, 1x ambulant), allgemeine Wohnungen (2x behindertengerecht, 6x normal)
Fläche: Gesamt 4265 m²
Leistungsphasen: 1-9
Fertigstellung: Januar 2015
Besonderheiten: weitgehend barrierefrei, neues Treppenhaus mit Aufzug

Impressum
Angaben zur allgemeinen Informationspflicht laut § 5 Telemediengesetz (TMG)
ARCHITEKTURBÜRO KARTINI
DIPL. ING. (FH) GEORG KARTINI
Hauptstr. 50, 93128 Regenstauf
Telefon: +49 (0) 9402 / 36 99
Telefax: +49 (0) 9402 / 77 95
Email: info@architekturbuero-kartini.de
Umsatzsteuer-Identifikationsnummer gemäß §27 a Umsatzsteuergesetz: DE 133239270
Mitglied der bayerischen Architektenkammer.
Staat, in dem die Berufsbezeichnung verliehen wurde: Deutschland / Bayern
Bayerische Architektenkammer
Körperschaft des Öffentlichen Rechts
Waisenhausstr. 4, 80637 München
Telefon: +49 (0) 89/ 139 880 – 0
Telefax: +49 (0) 89/ 139 880 – 55
info@byak.de
Das bayerische Architektengesetz sowie die Berufsordnung finden Sie unter: www.byak.de
Berufshaftpflichtversicherung
VHV Allgemeine Versicherung AG
VHV-Platz 1, 30177 Hannover
Nutzungsbedingungen
Die Inhalte unserer Internetseiten dienen der allgemeinen Information und einer unverbindlichen Darstellung des Architekturbüros Kartini. Trotz einer sorgfältigen Erstellung übernehmen wir keine Gewähr für die Richtigkeit, Vollständigkeit und Aktualität der Angaben. Eine jederzeitige Änderung behalten wir uns vor.
Haftung für Links
Unser Angebot enthält Links zu externen Websites Dritter, auf deren Inhalte wir keinen Einfluss haben. Aus diesem Grund können wir für diese fremden Inhalte auch keine Gewähr übernehmen.
Für die Inhalte der verlinkten Seiten ist stets der jeweilige Anbieter oder Betreiber der Seiten verantwortlich. Die verlinkten Seiten wurden zum Zeitpunkt der Verlinkung auf mögliche Rechtsverstöße überprüft. Rechtswidrige Inhalte waren zum Zeitpunkt der Verlinkung nicht erkennbar.
Eine permanente inhaltliche Kontrolle der verlinkten Seiten ist jedoch ohne konkrete Anhaltspunkte einer Rechtsverletzung nicht zumutbar. Bei Bekanntwerden von Rechtsverletzungen werden wir derartige Links umgehend entfernen.
Urheber- und Leistungsschutzrechte
Die auf der Website veröffentlichten Inhalte, Bilder und Pläne unterliegen dem deutschen Urheber- und Leistungsschutzrecht. Jede Verwendung und Verwertung bedarf der vorherigen schriftlichen Zustimmung des Architekturbüros Kartini.
Architekturbüro Kartini – Hauptstraße 50 – 93128 Regenstauf
Telefon: 09402/3699 – Telefax: 09402/7795
© 2023 Copyright by Architekturbüro Kartini. All Rights reserved!


